
F4-72型C式玻璃钢离心通风机
F4-72型(C式)玻璃钢离心通风机采用采用进口树脂(玻璃钢FRP)复合材质制作而成,它具有强度高、重量轻、耐腐蚀性能良好、不易老化、噪声低等特点,是较理想的新型防腐蚀风机,叶轮采用水冷座或油冷座经角带与电机传动。其好处是减少腐蚀电机、减速、降低电机负荷等作用,从而增加风机使用寿命。F4-72 C series of fiber glass centrifugal fan
F4-72 C-type FRP centrifugal fan is made of imported resin (FRP) composite material, which has high strength, light weight, good corrosion resistance, aging resistance and low noise. It is an ideal new type of anti-corrosion fan. The impeller is driven by a water-cooled seat or an oil-cooled seat with a corner belt and a motor. The benefits are reduced corrosion motor, slowdown, reduced motor load, etc., thereby increasing fan life.|
机 号 Model(No) |
||||
|---|---|---|---|---|
|
功 率 Power(Kw) |
转 速 Speed(r/min) |
流 量 Volume(M3/h) |
全 压 Pressure(Pa) |
|
| 6C | 11 | 2000 | 9209-18418 | 2176-1380 |
| 7.5 | 1800 | 8288-16575 | 1760-1116 | |
| 5.5 | 1600 | 7367-14734 | 1389-881 | |
| 4 | 1450 | 6677-13353 | 1139-724 | |
| 3 | 1250 | 5756-11511 | 846-537 | |
| 2.2 | 1000 | 4605-9209 | 541-344 | |
| 1.1 | 800 | 3684-7367 | 346-220 | |
| 7C | 15 | 1600 | 11698-23397 | 1890-1190 |
| 11 | 1450 | 10602-21204 | 1550-984 | |
| 7.5 | 1250 | 9140-18279 | 1151-731 | |
| 5.5 | 1120 | 8189-16378 | 924-586 | |
| 4 | 1000 | 7312-14623 | 736-468 | |
| 8C | 22 | 1600 | 17463-32380 | 2478-2490 |
| 15 | 1450 | 15826-29344 | 2032-1490 | |
| 15 | 1450 | 15826-29344 | 2032-1490 | |
| 15 | 1450 | 15826-29344 | 2032-1490 | |
| 11 | 1250 | 13643-25297 | 1507-1106 | |
| 7.5 | 1120 | 12224-22666 | 1209-887 | |
| 5.5 | 1000 | 10914-20237 | 963-707 | |
| 4 | 900 | 9823-18213 | 779-572 | |
| 3 | 800 | 8732-16190 | 615-452 | |
| 2.2 | 710 | 7749-11085 | 485-450 | |
| 10C | 30 | 1120 | 31237-43722 | 1902-1505 |
| 18.5 | 1000 | 27890-39038 | 1514-1190 | |
| 15 | 900 | 25101-35134 | 1225-970 | |
| 11 | 800 | 22312-31230 | 967-766 | |
| 7.5 | 710 | 19802-27717 | 761-603 | |
| 5.5 | 630 | 17571-24594 | 599-475 | |
| 4 | 560 | 15618-21861 | 473-375 | |
| 3 | 500 | 13945-19519 | 377-299 | |
| 12C | 55 | 1000 | 48195-67457 | 1859-1729 |
| 37 | 900 | 43375-60712 | 1767-1399 | |
| 30 | 800 | 38556-53966 | 1395-1104 | |
| 18.5 | 710 | 34218-41895 | 1097-869 | |
| 15 | 630 | 30362-42498 | 863-684 | |
| 11 | 560 | 31774-37776 | 646-540 | |
| 7.5 | 500 | 24097-33728 | 543-430 | |
| 5.5 | 450 | 21687-30356 | 440-348 | |
| 4 | 400 | 19078-26983 | 347-275 | |
| 14C | 110 | 1000 | 76535-107124 | 2985-2361 |
| 75 | 900 | 68881-96412 | 2412-1908 | |
| 55 | 800 | 61228-85699 | 1903-1506 | |
| 37 | 710 | 54340-76058 | 1497-1185 | |
| 30 | 630 | 48217-67488 | 1177-932 | |
| 18.5 | 560 | 42859-59990 | 929-736 | |
| 15 | 500 | 38267-53562 | 741-587 | |
| 11 | 450 | 34441-48206 | 599-474 | |
| 7.5 | 400 | 30614-42850 | 474-375 | |
| 5.5 | 355 | 27170-38029 | 372-295 | |
| 16B | 160 | 900 | 121040-143910 | 2990-2497 |
| 132 | 900 | 102810-111930 | 3157-3115 | |
| 110 | 800 | 91392-127920 | 2489-1969 | |
| 75 | 710 | 81110-113520 | 1957-1549 | |
| 55 | 630 | 71971-100730 | 1538-1218 | |
| 37 | 560 | 63974-89544 | 1214-961 | |
| 30 | 500 | 57120-79950 | 967-766 | |
| 18.5 | 450 | 51408-71955 | 783-620 | |
| 15 | 400 | 45696-63960 | 618-490 | |
| 11 | 355 | 40555-56764 | 487-386 | |
| 7.5 | 315 | 35985-50368 | 383-303 |
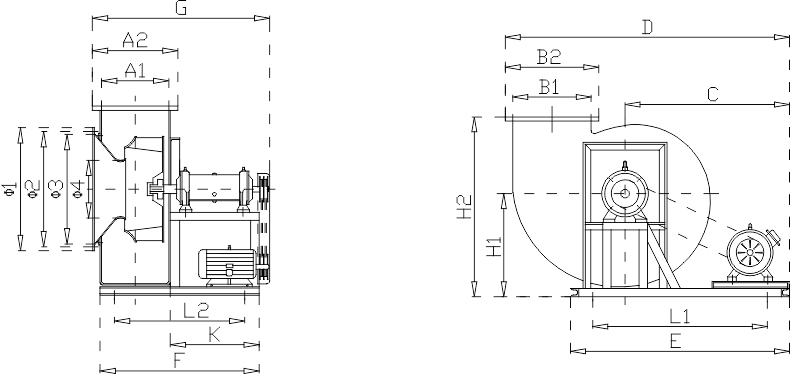
产品为人工实物测量会有一定误差,相关数据仅作参考,以收到的实物为准。 单位Unit: mm(毫米)
| 机 号 | |||||||||||||||||||
|---|---|---|---|---|---|---|---|---|---|---|---|---|---|---|---|---|---|---|---|
| 进风口 Air inlet | 出风口 Vent | 外形尺寸 Shape size | 底架尺寸 Bottom frane size | ||||||||||||||||
| NO | Φ1 | Φ2 | Φ3 | Φ4 | A1 | A2 | B1 | B2 | C | H1 | H2 | D | G | L1 | L2 | E | F | K | Φd |
| 3.2C | 395 | 365 | 310 | 180 | 238 | 324 | 265 | 344 | 618 | 400 | 682 | 1010 | 668 | 620 | 350 | 800 | 530 | 290 | 12 |
| 3.6C | 437 | 415 | 350 | 210 | 270 | 360 | 304 | 385 | 656 | 430 | 730 | 1100 | 935 | 706 | 380 | 890 | 565 | 295 | 12 |
| 4C | 490 | 450 | 380 | 240 | 300 | 410 | 325 | 420 | 760 | 455 | 780 | 1255 | 800 | 800 | 410 | 990 | 600 | 305 | 12 |
| 4.5C | 525 | 480 | 430 | 270 | 330 | 440 | 380 | 480 | 805 | 505 | 878 | 1370 | 850 | 850 | 420 | 1050 | 620 | 290 | 12 |
| 5C | 580 | 550 | 488 | 320 | 370 | 470 | 424 | 520 | 795 | 555 | 980 | 1420 | 880 | 880 | 450 | 1090 | 660 | 310 | 12 |
| 6C | 710 | 655 | 585 | 400 | 430 | 570 | 495 | 620 | 750 | 645 | 1088 | 1480 | 995 | 880 | 470 | 1240 | 830 | 460 | 12 |
| 7C | 810 | 750 | 700 | 450 | 490 | 620 | 585 | 705 | 1070 | 730 | 1245 | 1900 | 1215 | 990 | 540 | 1400 | 952 | 450 | 12 |
| 8C | 926 | 870 | 800 | 540 | 560 | 683 | 655 | 767 | 1470 | 862 | 1430 | 2430 | 1280 | 1030 | 575 | 1600 | 1145 | 575 | 12 |
| 10C | 1130 | 1040 | 950 | 660 | 695 | 845 | 810 | 948 | 1395 | 1075 | 1840 | 2553 | 1370 | 1310 | 625 | 2005 | 1320 | 605 | 12 |
| 12C | 1375 | 1295 | 1177 | 835 | 840 | 1040 | 943 | 1143 | 2608 | 1523 | 2430 | 3960 | 1745 | 1415 | 790 | 2315 | 1688 | 825 | 12 |
欢迎进入“万通风机”官方网站
Welcome to Wantong Xingfeng official website
![]() |
广州市万通通风设备有限公司 广州市万通通风设备有限公司(注册商标:万通星风)是一家研发、生产、销售、安装通风设备、大气污染防治设备的多元化专业性企业。产品广泛用于:电镀、化工、电子、电气、线路板、机械、电站、电厂、科研、医院、实验室、矿业、冶炼、橡胶、林业、皮革、纸业、陶瓷、模具车间、汽车制造,新能源机械等配套以及各种含有腐蚀性气体的场合。每一个产品都见证了万通的品质,让万通立足全国,走向世界!经过十几年发展“万通星风”已汇聚了一群技术精湛,经验丰富的专业技术人员,引进消化国内外先进技术,是国内拥有自主研发大气污染防治设备、防腐风机能力的厂家。“国际品质、万通打造” 全国服务热线: |
广州总公司
Guangzhou General Corporation
![]() |
销售电话: |
![]() |
官方网址: |
![]() |
电子邮箱:wantongfj@qq.com |
![]() |
![]() |
地址:广州市番禺区沙湾镇动车街33号之二 路线:广州地铁3号线到番禺广场站下,换乘公交车番68路、到古东村总站下。 |
|||
公司地图
Company map
咨询:F4-72型玻璃钢引风机
* 为必填项
广州市万通通风设备有限公司
销售电话:
ONLINE CONSUL TATION